Wpust Ecoguss, DN100, odpł. boczny, z nasadką Variofix i kratką szczel/ramą nierdz. 120x120
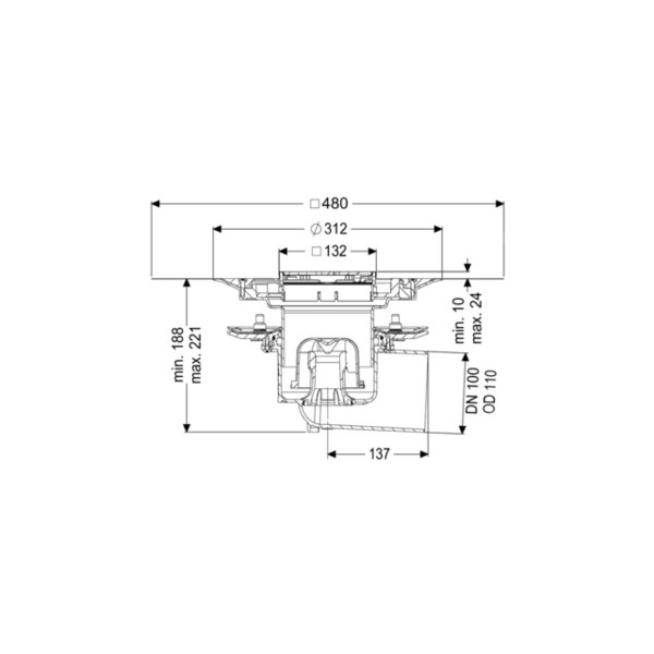
KESSEL Wpust obiek. Ecoguss doc.koł.usz., wielkość nominalna (DN) 100, dł. pokrywy 120 mm, króciec boczny, syfonem w zestawie, odwodnienie przez odpływ punktowy, maks. wys. posadzki 24 mm, typ pokrywy Kratka design, regulowany w trzech wymiarach
- Naukowo potwierdzona izolacja akustyczna
- Najwyższe standardy ochrony przeciwpożarowej
Wpust obiek. Ecoguss doc.koł.usz. DN 100, bocz., Variofix, Kratka design
Wpust obiektowy Ecoguss służy do odwodnienia punktowego i jest wyposażony w dociskowy kołnierz uszczelniający, wyjmowany syfon, uszczelkę wargową i pokrywę ochronną na czas fazy budowlanej. Nadający się do recyklingu materiał kompozytowy Ecoguss spełnia najwyższe wymagania w zakresie izolacji akustycznej, jest odporny na agresywne media i temperaturę oraz ma trwale niekorodującą powierzchnię. Można go krótkotrwale obrabiać otwartym ogniem od 100 do 400 stopni Celsjusza. Dociskowy kołnierz uszczelniający z bolcami i śrubami ze stali nierdzewnej służy do dociskania lub zgrzewania taśm bitumicznych i polimerowo-bitumicznych oraz taśm uszczelniających z tworzywa sztucznego i elastomerów. Do uszczelnień wodoszczelnych mogą być stosowane tylko sprawdzone przez producenta membrany hydroizolacyjne. Króciec odpływowy jest przystosowany do podłączenia do rur SML. Wyrównanie potencjałów nie jest konieczne.
Wersja
- System: 125
- Uszczelnienie na nasadzie: załączona mata uszczelniająca do przyklejenia (zmu) wg DIN 18534
- Uszczelnienie na korpusie: Dociskowy kołnierz uszczelniający (odpowiedni do tworzenia uszczelnień wodoszczelnych)
- Wys. zamknięcia wodnego: 50 mm
Cechy ogólne
- Norma: EN 1253-1
- Wielkość nominalna (DN): 100
- Średnica zewnętrzna (DA): 110 mm
Wymiary
- Ciężar netto: 3,75 kg
- Ciężar brutto: 4,66 kg
- Średnica: 273 mm
- Rodzaj regulacji wysokości: Nasada teleskopowa
- Długość: 273 mm
- Szerokość: 273 mm
- Wymiar opakowania: dł.: 586 mm
- Wymiar opakowania: szer.: 386 mm
- Wymiar opakowania: wys.: 400 mm
Zbiornik/korpus
- Liczba odpływów: 1
- Materiał korpusu wpustu: Ecoguss
- Wariant króćca: boczny
Cechy pokrywy
- Typ pokrywy: Kratka design
- Materiał pokrywy: Stal nierdzewna 14301
- Kolor pokrywy: srebrny
- Pokrywy, Szerokość: 120 mm
- Pokrywy, Długość: 120 mm
- Min. wysokość powłoki: 10 mm
- Materiał ramy: Stal nierdzewna 14301
- Blokada: Lock & Lift
- Klasa obciążenia: L 15 (EN 1253-1)
- Kratka Design: Kessel
- Klasa antypoślizgowości: R9 zgodnie z DIN 51130; C zgodnie z DIN 51097
- Szerokość ramy: 132 mm
- Długość ramy: 132 mm
- Maks. grubość podłogi: 24 mm
- Nasada: regulowany w trzech wymiarach
- Kształt nasady: Kwadratowa
- Materiał nasady: ABS
- Syfon: w zestawie







