Instalatorze, możesz zamówić kotły Vaillant ecoTEC pro za punkty PIK!
 

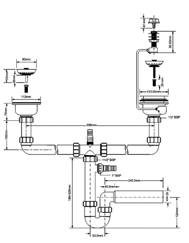
Syfon zlewozmywakowy rurowy podwójny 3,5"X50mm z podłączeniem pralki lub zmywarki, spust z mech.automatycznym

Kod IK

CEHC7HC12-POL5

Kod EAN

5036484015242

Kod producenta

HC7HC12-POL5

Marka

MCALPINE

Model

Brak modelu

Cena katalogowa netto

211,66 zł / szt.

Cena katalogowa brutto

260,34 zł / szt.

Syfon zlewozmywakowy rurowy podwójny 11/2"x50mm z podłączeniem do pralki i zmywarki, ze spustami 113mm i korkiem automatycznym.

Dane logistyczne

Opakowanie zbiorcze 1

Jednostka zbiorcza opak.

opak

Ilość

8

Masa brutto [kg]

10,96

Długość [m]

0,48

Szerokość [m]

0,58

Wysokość [m]

0,58