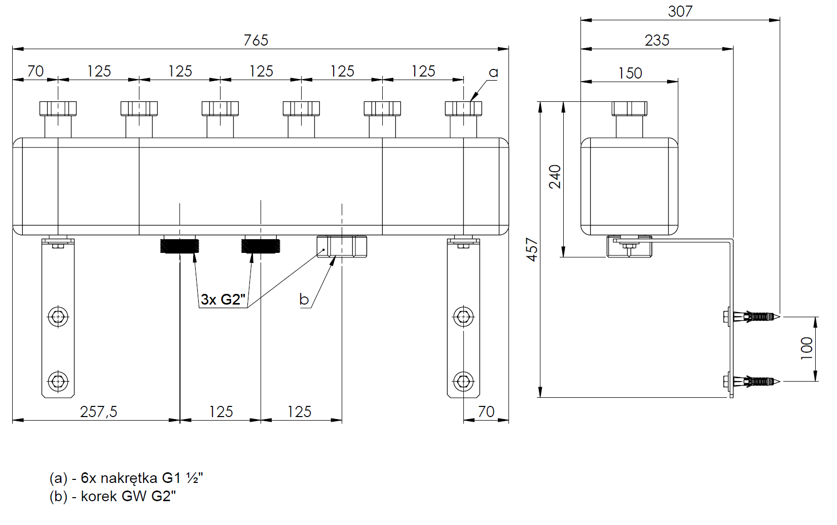
Rozdzielacz do instalacji c.o. AFRISO KSV 125-3 GZ 2'', 3-obieg. Nakrętka 1 1/2'', max. 160 kW
Przyłącza od strony instalacji dostosowane do grup pompowych PrimoTherm.
Wyposażony w izolację termiczną.
Zastosowanie
Stosowany w instalacjach grzewczych i chłodzących.Montowany na ścianie pomiędzy źródłem ciepła lub chłodu a grupami pompowymi.
Przeznaczony do szybkiego i wygodnego podłączenia trzech grup pompowych PrimoTherm do źródła ciepła.
Zastosowanie
Stosowany w instalacjach grzewczych i chłodzących.Montowany na ścianie pomiędzy źródłem ciepła lub chłodu a grupami pompowymi.
Przeznaczony do szybkiego i wygodnego podłączenia trzech grup pompowych PrimoTherm do źródła ciepła.
Dane techniczne
Liczba przyłączy kotła
1
Liczba przyłączy od strony sieci
3
Maksymalna moc grzewcza [kW]
160
Rodzaj przyłącza kotła
Gwint zewnętrzny
Rozmiar przyłącza od strony sieci
1 1/2''
Rozmiar przyłączy kotła
2''
Wykonanie połączenia od strony sieci
Nakrętka




