Instalatorze, możesz zamówić kotły Vaillant ecoTEC pro za punkty PIK!
 

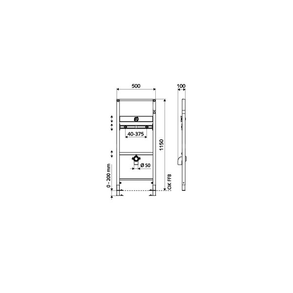
Moduł montażowy do pisuaru - spłuczka natynkowa

Kod IK

41030900099

Kod EAN

4021163162844

Kod producenta

030900099

Marka

SCHELL

Model

MONTUS

Cena katalogowa netto

259,58 EUR / szt.

Cena katalogowa brutto

319,28 EUR / szt.

Moduł do pisuaru
Poprzeczka do montażu pisuaru 40 - 375 mm, regulowana na wysokość
Poprzeczka z izolowanym akustycznie przyłączem armatury, z korkiem ochronnym, regulowana na wysokość
Poprzeczka z kolanem odpływowym i korkiem ochronnym, regulowana na wysokość
Ocynkowane, regulowane na wysokość nóżki montażowe 0 - 20 cm z zabezpieczeniem antypoślizgowym
Elementy montażowe do stopek montażowych
Elementy montażowe do montażu bidetu (tr