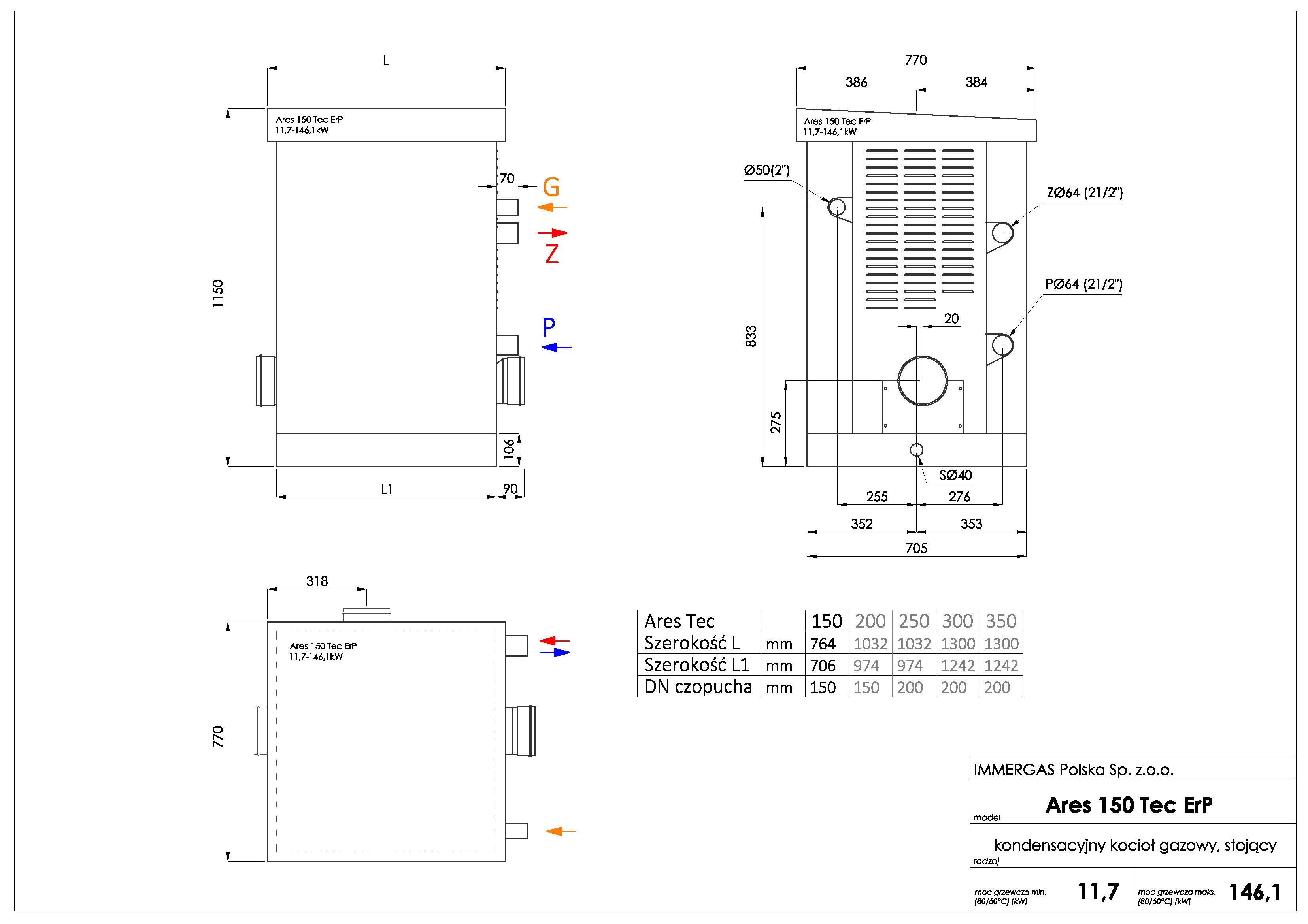
Kocioł kondensacyjny ARES 150 Tec
Możliwość zmiany kierunku wyrzutu spalin - bok lub tył
Możliwość zmiany kierunku przyłączy rur c.o. i gazu - lewa/prawa strona
Budowa modułowa - praca niezależna poszczególnych modułów
Kocioł przyjeżdża z fabryki gotowy do pracy (wbudowane palniki)
Bardzo szeroki zakres modulacji mocy - możliwość dopasowania się do aktualnego zapotrzebowania na moc
Możliwość pracy kaskadowej (do 8 kotłów, łącznie prawie 7MW mocy grzewczej)
Możliwość kontroli 13 obiegów grzewczych
Niski wskaźnik masa/moc, wymiary/moc
Stopień ochrony elektrycznej IPX5D.
Niski poziom hałasu nawet <52 dB(A)
Klasa NOx 6
Bogaty wybór dodatkowych akcesoriów







